Founded in 2002, Safricad Ltd. specializes in documenting built infrastructure with services such as measured building surveys, topographic site surveys, and CAD design.
Over 22 years, Safricad has expanded its offerings to include architectural, underground utility, and maintenance surveys, as well as 3D visualization and web graphic design.
We also offer consultancy for CAD procurement, management, and technical documentation, supported by in-house software development for complex projects.
We handle all aspects of your project's spatial needs, from measured and topographic surveys to confined space assessments. Our services also include traffic management, space planning, and asset management, ensuring a comprehensive solution for every project.
Our Computer-Aided Design (CAD) services provide for format conversions, intelligent CAD drawings, and precise vectorization. We also offer large-format plan printing and scanning all to meet your comprehensive design needs.
Bring the future to life with photorealistic renderings, architectural walk-throughs, and fly-by animations of any environment
Over the past decade, Safricad has branched out into creating custom web apps both for their own use and for their clients. They have been building these apps as open-source as tailor-made solutions.
We specialize in product design and manufacturing, providing laser cutting and engraving for custom creations in wood, acrylic, and other materials ideal for small production runs or one off designs.
Let us handle your documentation needs, including bookkeeping, typing, and filing, so you can focus on what matters most. We also offer scanning, copying, and printing services. Explore our full range of offerings and discover how we can support your vision with cutting-edge tools, expert knowledge, and customized solutions.
This type of survey is at the heart of our business, covering plan, elevation, roof, and building services records.
These surveys are commonly required for financial appraisals, budgeting, space planning, verification, and the design of alterations, extensions, and maintenance works.
With extensive experience working in remote locations, our teams are available for projects nationwide, ready to support your needs wherever they arise.
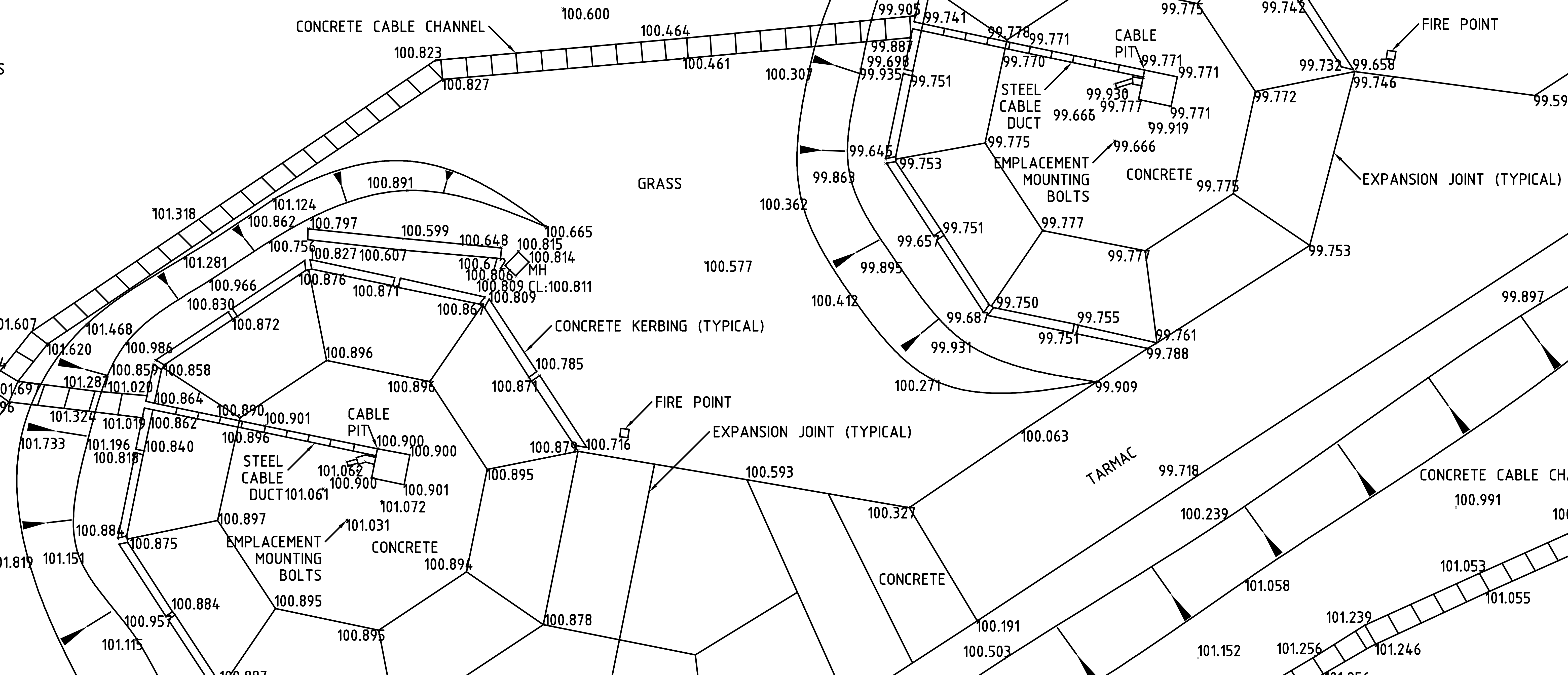
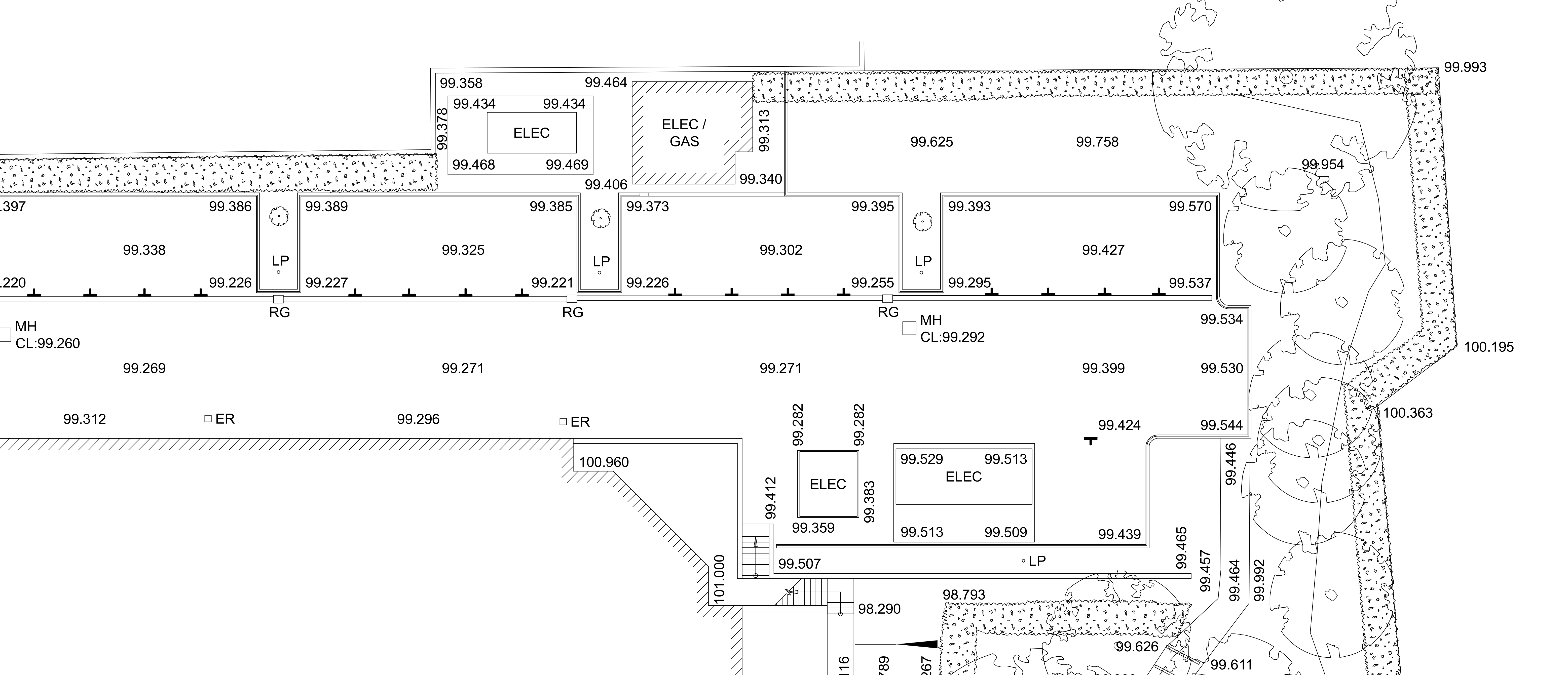
Topographic surveys of existing sites and structures are essential for planning new builds, alterations, extensions, service verification, utility mapping, or maintenance works.
We utilize Total Station technology to capture three-dimensional positional data (x, y, z), which is then transferred to computer systems and CAD for detailed analysis and design.
We offer a virtual CAD, graphics, and documentation office that can scale up or down based on your project needs, eliminating the costs of permanent office space or staff.
Our services include file format conversion, data capture, vectorization, intelligent CAD drawings, large-scale color plotting, plan printing, and scanning.
We ensure the high-quality deliverables you expect
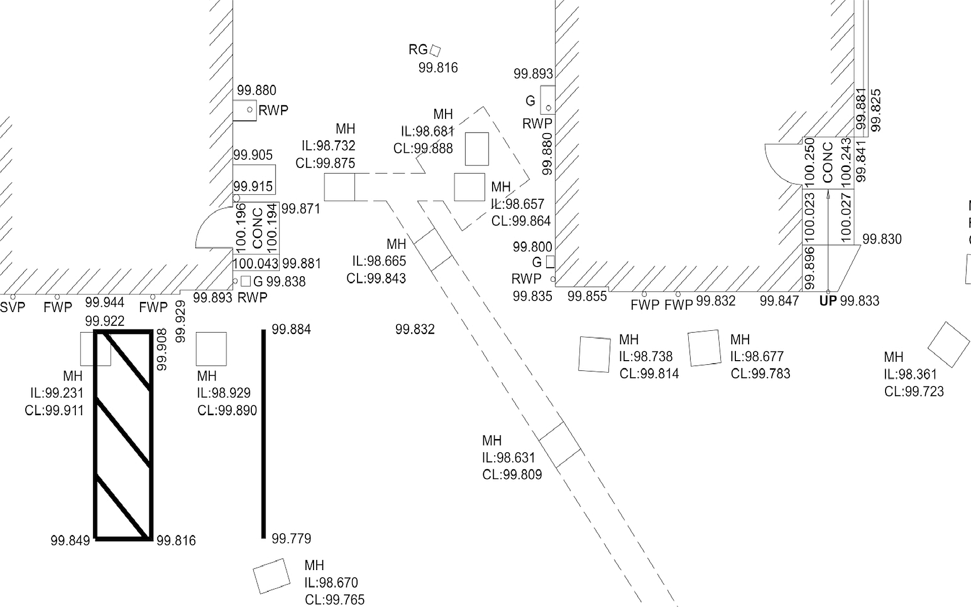
We have extensive experience of surveying underground chambers and utility routes specifically documenting confined spaces.
The resulting data allows for the production and management of accurate underground service records and confined space registers.
Using 3D visualization for architectural, terrain, and space planning projects, we bring your design and survey data to life, accurately reflecting both existing and future designs. Our team creates detailed 3D models that produce lifelike images, ideal for presentations, marketing, and design analysis.
Our 3D models are meticulously crafted to scale and proportion, incorporating realistic textures, materials, colors, and finishes.
While this technology may not be necessary for smaller projects due to cost considerations, it offers significant value for larger projects by enabling key design decisions to be made well in advance, before construction even begins
By inspection, hard and soft fittings are recorded as room data according to client specifications for building audits.
These records are integrated into asset and maintenance management programs, supporting activities such as benchmarking, monitoring, refurbishments, planning, maintenance, compliance with current legislation, and help desk support.
The final output is typically provided in graphic and database file formats, ensuring easy access and management of the data
Space planning is a key aspect of our work, involving the analysis of how physical space is utilized within a structure.
The goal of space analysis is to optimize floor space, ensuring maximum efficiency without unnecessary waste.
When done correctly, this process results in a detailed space plan that outlines the specific needs and elements required for each area, such as windows, doors, and furniture.
A topographic survey of the existing site is conducted, and CAD layouts are created from the collected survey data. Proposed schemes, including existing and proposed routes, services, and relevant vehicle turning circles, are overlaid onto the base plan.
This data serves as the foundation for re-design, ensuring precise and efficient planning.
Additionally, 3D models of both the existing and proposed layouts can be generated in CAD, with animations along the turning circle tracks to fully analyze the designs implications
Honing designs by evaluating manufacturing constraints such as material strength, cutting times, engraving times, and assembly costs can be time-consuming.
In fact, many designs never even make it off the drawing board because of these challenges.
This is where we can help: by finding the perfect balance between creative design and the cost of bringing a commercially viable product to life.
With our valuable insights into the commercial design process, we can assist you in developing products that are not only innovative but also cost-effective
From material selection and sourcing to jigs and setups, cutting and engraving, workflow management, assembly, and testing of sub-sections to full product manufacture, we cover every aspect of the production process.
To create the most cost-effective environment for developing our capabilities, we decided to invest in a laser cutter/engraver. While CNC equipment presented limitations for our ideas, and commercial 3D printing machines were still costly, the laser cutter provided the flexibility we needed.
Over the past three years, we've honed our skills by creating raster/vector input files for our 80W CO2 laser cutter/engraver. This experimentation has allowed us to refine the best parameters for optimal accuracy and repeatability in production.
A laser cutter operates by harnessing a concentrated beam of energy from a fixed laser, directed onto a small area using mirrors and lenses (optics). This focused beam either melts, burns, vaporizes, or blows away the material with a jet of gas, resulting in a clean, high-quality edge finish.
To perform the cutting process, we generate a 2D vector file, created using specialized design software. The designer inputs essential details such as material type, thickness, and shape, and then sends the file to the machine.
The laser cutting machine follows the commands based on the information contained in a vector file.
In many companies, the traditional drawing office, print room, typing pool, and administration office have largely been replaced by networked desktop PCs and IT departments, often due to cost-saving measures.
However, without the checks and balances that were inherent in the previous system, this shift can lead to procedural errors and data inaccuracies, which, in some cases, may have compounded over the years.
We can assess your current procedures and provide independent, vendor-neutral recommendations for corrective actions, as well as suggestions for improved future systems, processes, and personnel management.
With a complete design office at our disposal we can offer most office functions in-house as a service.
These include Scan, Copy, Print services - from size A5 to A0.
Over the past ten years, Safricad has diversified into developing custom web applications for both internal use and for clients.
These have been developed to specification as open source.
It is our intention to commercialise these products and to be able to release them as stand-alone generic applications.
Managing and reporting on the financial aspects of projects can often be fragmented and disjointed, particularly when multiple divisions are working on large contracts.
OPARS provides for the rapid alteration of recording and reporting processes should directives change. The ability to rapidly generate thorough and dependable project financial reports is the key feature of OPARS. Additionally, it is built on a powerful open source architecture.
Using OPARS your company will report a 'single version of the truth' month-on-month, with greater accuracy and consistency, in a fraction of the time.
Safricad was sub-contracted to survey and document county councilr assets for inclusion in an Asset Management Plan (AMP).
We visited each site and conducted a full measured survey of various assets, including primary and secondary schools, nursery schools, homes for the elderly, fire stations, museums, family centers, libraries, offices, agricultural smallholdings, and more, spread across the county.
Our drawings were created in CAD format to a strict specification and synchronized with the council's corporate property database.
This process enabled an up-to-date record of the council's estate to be established and maintained. Over a three-year period, we surveyed more than 600 sites.
This project demonstrated our ability to create intelligent CAD drawings that integrate seamlessly with database software
Safricad was to topographic survey a large site for potential redevelopment.
The survey consisted of the existing terrein, all permanent and temporary structures, all traceable associated surface and underground services were captured.
In addition, cover and invert levels of manholes were taken, the size and fall of drainage runs and any airborne services within the area were picked up (typically power and communication lines). Generic trees and bushes were recorded to reflect their trunk size / spread and extent.
Site spot levels were taken to provide a grid throughout site and all parking areas were surveyed including designations.
Safricad was tasked with updating the confined space records for five large sites.
We conducted thorough investigations of all visible manholes, pits, surface water drains, cable ducts, and other relevant structures. At each location, covers were removed, physical dimensions of the spaces were measured, the type of service was recorded, and confined space risks were assessed.
Additionally, all service routes were updated based on the visual inspections, and the accurate positioning of manholes, pits, surface water drains, and cable ducts was verified.
Confined space identification drawings, along with updated schedules, were then created in CAD format according to the client's specifications. Updated confined space registers were also provided in electronic format.
This project has since served as a model for similar projects, where confined space documentation, drawing updates, and utility surveys are required
Safricad was commissioned to survey several large sites and provide room data sheets for over 4,000 rooms.
The sites included a diverse range of assets, such as offices, accommodation blocks, workshops, garages, museums, churches, gymnasiums, auditoriums, and more. Every room within the identified assets was surveyed to record dimensions, fabric, and furnishings, ensuring comprehensive coverage.
Each room was checked against a list of over 100 critical specified items. The survey data was then collated and entered into a database.
Individual room data sheets were generated, accompanied by the corresponding building drawings showing room locations, all provided in electronic format.
Safricad surveyed several listed aircraft hangars for refurbishment of doors and roofs, requiring attention to their heritage status.
The survey involved using a cherry picker to inspect and document roof structures, trusses, door mechanisms, and walls.
Most hangars were brick with Belfast trusses, while the largest featured brick walls, angle iron trusses, and corrugated steel elements.
3D CAD drawings were created to support flexible design discussions, allowing quick adjustments for plans, sections, and details.
The project was completed on time, within budget, and in compliance with heritage requirements.
Safricad was approached by several independent restaurants, clubs, and pubs in Berkshire to assist with Liquor License Applications under the Licensing Act 2003 (Transitional Provisions) Order 2005.
For each application, we submitted a scale plan of the premises meeting the legislation's specific criteria. The plans clearly showed the building's boundary, internal and external walls, premises perimeter, access and escape routes, and, where applicable, stages, raised areas, stairs, elevators, or rooms with public conveniences.
We also documented fire safety equipment and kitchen facility locations. Over a month, we surveyed and issued plans for 30 sites, ensuring timely submission to meet the final deadline
A topographic survey of the existing site entrance and surrounding road was completed.
From this data, 2D CAD layouts were produced, incorporating the relevant turning circles for articulated vehicles, which were overlaid onto the base plan.
Next, 3D models of both the existing and proposed layouts were created in CAD. These models were animated along the path of the turning circles to fully analyze the potential impact of the redesign.
The animations could be viewed from various angles as needed, with the ability to capture screen shots for further reference and detailed design review
Safricad was to survey identified areas on an extensive site that was to be re-zoned as training areas.
This required a detailed survey of the identified areas for underground voids that may provide a subsequent risk to the client and the environment, affecting the water table by pollution, retention of land drainage run-off or health hazards.
The brief required all visual manholes, pits, surface water drains, cable ducts, etc. to be opened. At each location, the type of service and confined space risk was assessed.
The remaining unverified manholes, pits, cable ducts, etc. were also opened, location recorded and an assessment of service made. Further any external confined spaces were identified. The existing record drawings were updated in CAD format to client specification
Safricad was commissioned to survey fifteen Magistrates Courts across London, requiring a full measured survey of both permanent and temporary structures.
Anticipating restricted access to areas like courtrooms, cells, and probation offices during office hours, we proposed a flexible approach.
We requested access during weekends and outside regular hours, which was granted. Most surveys were completed between 8:00 PM and 3:00 AM, with some secure areas accessible only on weekends.
Despite these challenges and a tight deadline, we organized four survey teams on shifts and completed the surveys within eight weeks, allowing our CAD office to finalize the drawings on time.
Safricad was to design and produce 15 sets of rink markers for a local lawn bowls club.
Each set included three coloured markers, two rink designators, and one rink number. The project required custom designs, with attention to strength and ease of handling.
Despite the pressure of our first large order, we successfully delivered high-quality markers that met the client's specifications.
Safricad has completed numerous bespoke engraving projects on materials such as wood, glass, acrylic, and metal. One of the more interesting and challenging projects involved reverse engraving a photograph onto a mirror.
This task required us to pixelate the photograph, create a negative image, and then mirror it for engraving on the back of the mirror surface. The most complex part of the process was preparing the file for laser engraving, ensuring that every detail of the image was accurately translated to the mirror.
The result was a striking and unique engraved photograph, demonstrating our expertise in handling intricate engraving techniques across a variety of materials>
The images below have been selected to give an example of the type of work we produce. Obviously, we cannot represent all our project details here.
For further details, please contact directly for more information.